IMMEXPERTS, votre agence immobilière de la région, vous propose :
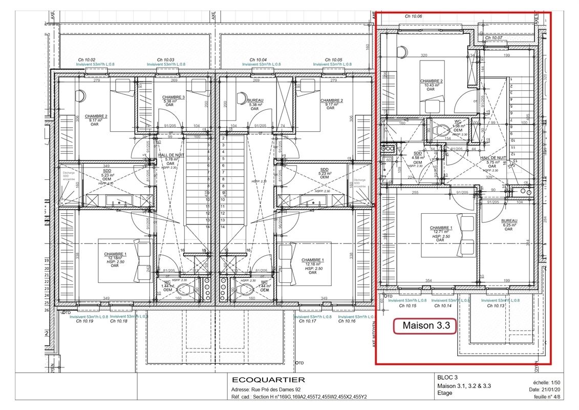
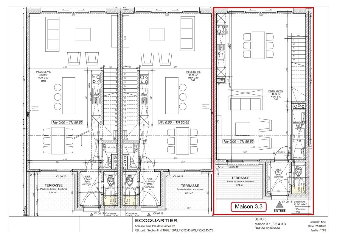
Situé dans l' Eco-quartier "Pré des Dames", superbe maison se composant comme suit :
- au rez-de-chaussée : un hall d'entrée, un WC, un débarras, un séjour avec coin cuisine super-équipée et une terrasse ;
- au 1er étage : un hall de nuit, deux chambres, un bureau, une salle de douche et un WC;
Nombreux atouts : quartier résidentiel et sécurisé (conciergerie), faible consommation en énergies, chauffage sol au gaz de ville, à 2 pas du centre-ville d'Andenne et de ses facilités, ...
PEB A - 78kwh/m².an - 9.574 kWh/an - réf : 20210714503480 - Disponible le 05/05/2026.
Loyer : 1.190 €/mois + Emplacement de parking (obligatoire) : 40 €/mois - Charges : 75 €/mois (communs, assurance abandon de recours et entretien chaudière).
Informations & Visites au 085/84.41.91 - bureau@immexperts.be -
www.immexperts.be